CONTEXTE : Aménagement complet d'un appartement à Paris 5ème. Création d'un espace dans des tonalités bleu paon, vert clair, vert foncé avec des touches de bois, de marbre et de laiton dorée pour relever l'ensemble. L'espace comporte un jeux sur des touches lumineuses bien placées pour un ensemble chaleureux. Le projet a été pensé de A à Z, depuis la conception des plans et images 3D, jusqu'au choix des matériaux et des mobilier avec le suivi des travaux.
Surface : 27m² - Durée travaux : 4 mois - Budget travaux : 53 000 € - Budget étude : 5000 €
Photo de réalisation
Photo de réalisation
Photo de réalisation
Photo de réalisation
Photo de réalisation
Photo de réalisation
Photo de réalisation
Photo de réalisation
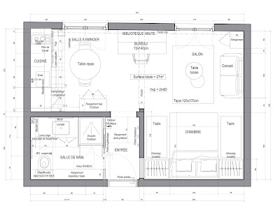
Plan Projet
Vue en Elevation - salle de bain
Image 3D réaliste
Image 3D réaliste
Image 3D réaliste


















